ATENDEMOS EM TODO O TERRITÓRIO NACIONAL |
  • Descrição

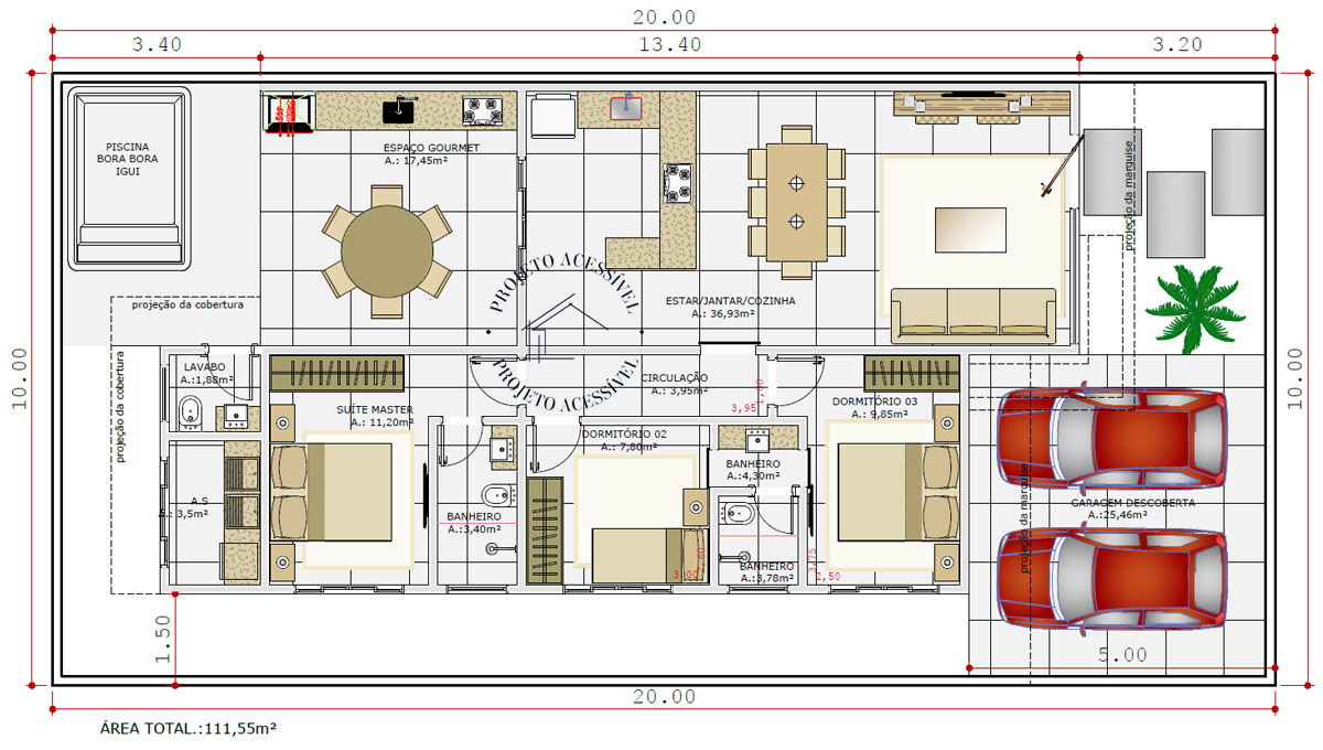
    Esse projeto foi especial! Resultado de uma enquete no nosso instagram (@projetoacessivel - corre lá), nossos clientes votaram tamanho de lote, quantidade de ambientes, itens da casa - e ainda deram os famosos "pitacos" na planta antes dela ser finalizada! Foi um processo muito legal, e aqui você encontra o resultado: com área construída de 111 metros quadrados, possui garagem para 2 carros, cobertos por um pergolado - portanto não entra na área construída, acesso social para sala de tv, sala de jantar e cozinha integradas. Da cozinha saimos para um espaço gourmet, que conta ainda com lavabo e lavanderia, e uma piscina modelo pronto, de fibra. Na área íntima, três quartos, sendo uma suíte e dois quartos com modelo de banheiro demi suite. Ideal para terrenos a partir de 10 metros de frente por 20m de profundidade, área total de 111,55m².

  • Solicitar Proposta Técnica Falar com a Arquiteta

    Projeto Arquitetônico em PDF enviado via e-mail. Devidamente registrado no CAU – Conselho de Arquitetura e Urbanismo. É necessário contratar um responsável técnico pela OBRA, pois só nos responsabilizamos pelo PROJETO. Enviaremos um email solicitando todos os dados necessários para o registro no CAU.

Três Fachadas

Você receberá FACHADA 3D, FRONTAL E FUNDOS, mostrando o desenho da elevação frontal da casa, caracterizando as janelas, portas e revestimentos.

Duas Plantas Baixa

Inclui a PLANTA BAIXA LAYOUT E PLANTA BAIXA TÉCNICA, mostrando a posição das paredes, dimensões e áreas dos ambientes da casa.

Planta de Cobertura

A planta de cobertura é a planta técnica de como vai ficar o telhado da construção. Contém indicação do tipo de telha à ser utilizado na obra.

Dois Cortes Internos

Os cortes mostram as alturas dos pisos, medidas do pé direito, peitoris de janelas, nível e espessura de lajes, degraus de escada.

Quadro de Esquadrias

Detalha em uma tabela as medidas e materiais das portas, janelas e portões indicados na planta baixa e auxilia na solicitação de orçamentos.

Arquivo Cad.

Com esse arquivo, o arquiteto/engenheiro contratado para acompanhamento ou execução da obra consegue editar o projeto, adequando ao terreno.